Descrizione
Vico Muratori.
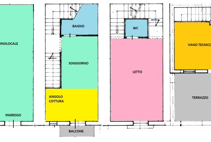
Nei pressi di Piazza XX Settembre e del Lungomare, proponiamo in vendita intero stabile ad uso abitativo su più livelli, così composto: piano terra un vano con bagno e accesso indipendente; primo piano anch’esso con accesso indipendente, composto da un vano balconato e bagno; secondo piano con un vano, bagno e finestra; terzo piano con vano e terrazza a livello. Ottimo investimento come struttura ricettiva!
A.P.E Classe G
TRATTATIVA IN CORSO!!
DOVE SI TROVA



